Place PEY Berland 63m2

annonce Local professionnel

Annonce publiée le 27 octobre 2025

Place PEY Berland 63m2

Magnifique local professionnel prestigieux dans un bâtiment historique

63 m2 situé sur la place Pey Berland à la croisée des 2 TRAMWAYS ligne A et B arrêt hôtel de ville stationnement facile avec le parking Pey Berland

Bâtiment historique ancienne église grandes baies vitrées donnant sur le mur d’enceinte de l’ancienne église notre dame de la place

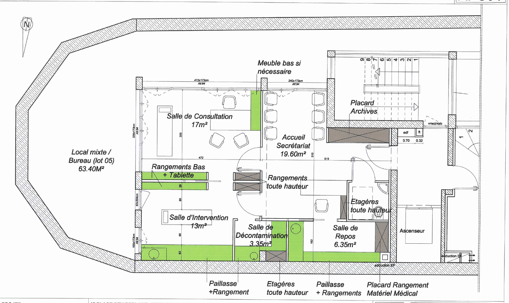
aménagé actuellement en cabinet medical, 2 bureaux et salle d’attente secretariat, salle de stérilisation, coin cuisine, toilettes

nombreux placards et mobilier

idéal prof libérale charge 272,60/ 3 mois loyer 1990 euros/mois HC non soumis TVA

plus de photos sur demande premier contact mail

Transaction Location
Nombre de bureaux 2
Surfaces Entre 60 et 90 m²
Loyer mensuel 1500 à 2000 €
Adresse 17 place pey berland
Ville Bordeaux
Disponibilité 01/03/2025
Contact dr.cante.dermato@gmail.com
Lien du site https://www.leboncoin.fr/ad/bureaux_commerces/3081075488

JPEG - 214 Ko

IMG_0486.jpg

JPEG - 177 Ko

IMG_0483.jpg

JPEG - 163 Ko

IMG_0482.jpg

JPEG - 163 Ko

IMG_0478.jpg

JPEG - 358 Ko

IMG_0495.JPG

PDF - 1 Mo

Capture-decran-2025-10-25-a-17.55.16.png